服務熱線
0519-88902391
加入收藏


![]()
制藥工業:片劑、沖劑、膠囊劑顆粒;低糖、無糖的中成藥顆粒;
食品:可可、咖啡、奶粉、顆粒果汁、調味品等;
其它行業:農藥、飼料、化肥、顏料、染料等。
![]()
集噴霧干燥/流化制粒于一體,實現液態物料一步法制粒;
采用噴霧工藝,特別適用微輔料,熱敏性物料,功效比FL沸騰制粒機高1—2倍;
一些產品終水份可達0.1%,配備返粉裝置,成粒率≥85%,可制0.2-2mm顆粒;
改進設計的內混式多流體霧化器,可處理一些比重達
1.3g/cm3 的浸膏。
目前該系列產品已做到PGL-150B,每批可處理500kg。
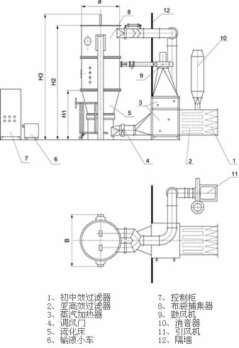
![]()
| 項目 | 單位機型 | PGL-3B | PGL-5B | PGL-10B | PGL-20B | PGL-30B | PGL-80B | PGL-120B | |
| 流浸膏 | ^小 | kg/h | 2 | 4 | 5 | 10 | 20 | 40 | 55 |
| ^大 | kg/h | 4 | 6 | 15 | 30 | 40 | 80 | 120 | |
| 沸騰能力 | ^小 | kg/批 | 2 | 6 | 10 | 30 | 60 | 100 | 150 |
| ^大 | kg/批 | 6 | 15 | 30 | 80 | 160 | 250 | 450 | |
| 液體比重 | kg/L | ≤1.30 | |||||||
| 原料容器量 | L | 26 | 50 | 220 | 420 | 620 | 980 | 1600 | |
| 容器直徑 | mm | 400 | 550 | 770 | 1000 | 1200 | 1400 | 1600 | |
| 引風機功率 | kw | 4.0 | 5.5 | 7.5 | 15 | 22 | 30 | 45 | |
| 輔風機功率 | kw | 0.35 | 0.75 | 0.75 | 1.20 | 2.20 | 2.20 | 4 | |
| 蒸汽 | 耗量 | kg/h | 40 | 70 | 99 | 210 | 300 | 366 | 465 |
| 壓力 | Mpa | 0.1-0.4 | |||||||
| 電熱型功率 | kw | 9 | 15 | 21 | 25.5 | 51.5 | 60 | 75 | |
| 壓縮空氣 | 耗量 | m3/min | 0.9 | 0.9 | 0.9 | 0.9 | 1.1 | 1.3 | 1.8 |
| 壓力 | Mpa | 0.1-0.4 | |||||||
| 作業溫度 | ℃ | 室溫-130℃自動調節 | |||||||
| 產品水份 | % | ≤0.5% | |||||||
| 物料收得率 | % | ≥99% | |||||||
| 設備噪音 | dB | ≤75 | |||||||
| 主機尺寸 | Φ | mm | 400 | 550 | 770 | 1000 | 1200 | 1400 | 1600 |
| H1 | mm | 940 | 1050 | 1070 | 1180 | 1620 | 1620 | 1690 | |
| H2 | mm | 2100 | 2400 | 2680 | 3150 | 3630 | 4120 | 4740 | |
| H3 | mm | 2450 | 2750 | 3020 | 3700 | 4100 | 4770 | 5150 | |
| B | mm | 740 | 890 | 1110 | 1420 | 1600 | 1820 | 2100 | |
| 重量 | kg | 500 | 800 | 1200 | 1500 | 2000 | 2500 | 3000 | |
選型例:要求每批次處理流浸膏量I=120kg(含固量為30%)、種子量II=60kg,可由I、II得出理論成品量M=mI+mII=120kg*30%+60kg=96kg,工作時間T=120kg/30kg/h=4h,技術參數欄中可查出沸騰量為標準載荷范圍,故以每班完成兩個批次,選用PGL-30B型較為適宜。
設備圖片
